EPC general contracting of Fuzhou Taiwan mud nickel slag powder cement mixing system
发布日期:2021-07-29 浏览次数:1019
1、Project Introduction
Fuzhou TCC Cement Co., Ltd. was established on May 17, 2002, with an annual output of 1.5 million tons of cement. In order to achieve the goal of saving energy, reducing consumption and improving product competitiveness, Fuzhou TCC has proposed a transformation project of mixing nickel slag powder. Our company is the winning bidder for this EPC project. The project includes the scheme design of the nickel slag powder mixing system, equipment selection and supply, construction, installation and commissioning.
2、Technical Plan
2.1 Process Plan Formulation
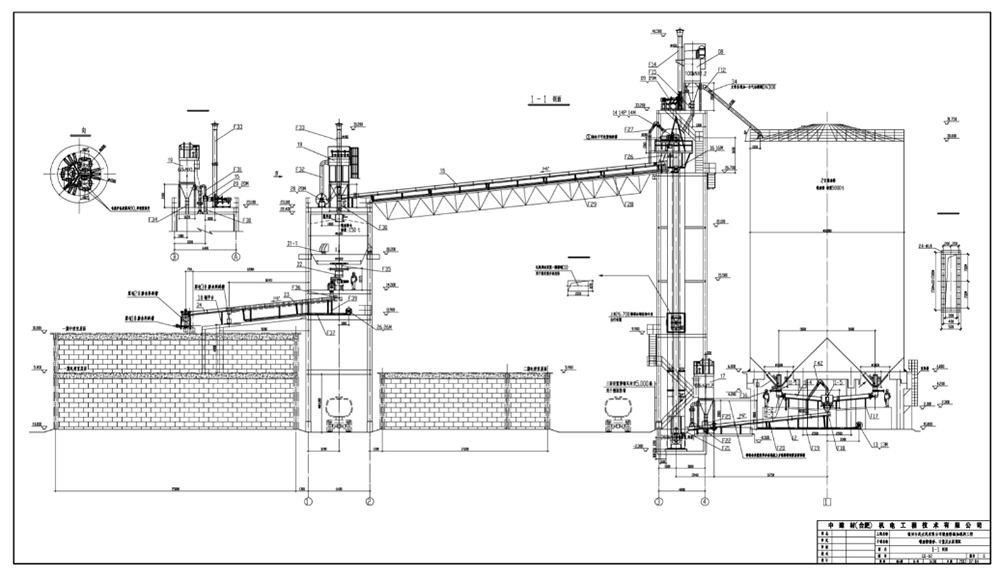
The project is limited by the original factory space. When our company made the design and transformation plan, we successfully dealt with the compatibility problem between the original production system and the newly added system. The process plan and pictures of the scene are as follows:
Figure 1. Process chart of the Fuzhou TCC nickel slag powder blending system
Figure 2. Process plan of Fuzhou TCC nickel slag powder blending system
Figure 3. The photo of Fuzhou TCC nickel slag powder blending system
2.2 Core Equipment Solution
The process equipment of this project involves the storage, transportation, metering and mixing of nickel slag powder, and its core equipment is the metering and mixing of nickel slag powder.
(1)Nickel slag powder metering device
The project is equipped with our Coriolis powder metering device (one warehouse with three devices). The metering device uses the Coriolis principle to achieve a metering accuracy of ±0.5% and a control accuracy of ±1%. Equipment pictures of scene and metering data are as follows.
Figure 4. The photo of nickel slag powder metering device
Figure 5. Trend chart of nickel slag powder metering scale
|
Data |
Time |
Weight(t) |
Accumulation(t) |
Difference (t) |
Error |
|
|
2017.6.22 |
18:20 |
111.84 |
88.88 |
|
|
|
|
2017.6.22 |
19:20 |
103.92 |
96.86 |
0.05 |
0.66% |
|
|
2017.6.22 |
20:20 |
95.86 |
104.86 |
-0.06 |
-0.75% |
|
|
2017.6.22 |
21:20 |
87.84 |
112.83 |
-0.05 |
-0.65% |
|
|
2017.6.22 |
22:20 |
79.78 |
120.85 |
-0.04 |
-0.44% |
|
|
2017.6.22 |
23:20 |
71.70 |
128.83 |
-0.10 |
-1.19% |
|
|
Average error percentage in 5 hours: -0.48% |
|
|||||
Table 1. Data analysis of metering effect of nickel
slag powder metering device
(2)Mixer
The project is equipped with our combined continuous mixer, which is a vertical mixer (Figure 6). This selection effectively solves the space interference problem between the old production line and the newly added system on site, and makes the new system perfectly integrated into the old production line system. The operating power consumption of the blender is lower (the actual power is 4Kw), and the blending effect is excellent. The conditions and blending data are as follows.
Figure 6. photos of combined continuous mixer on site
2.3 Electric Control Scheme
In order to facilitate the control of the mixing of nickel slag powder, our project team specially developed a set of DCS centralized control system (as shown in Figure 7). The control scheme design has the following three control methods.
(1) Central control interlock mode: In this mode, the equipment starts and stops in sequence, and the equipment starts and stops are related to the upper and lower levels. This mode is mainly used in normal production;
(2) Central control uninterlocking mode: In this mode, the central control can realize single-point start and stop equipment, and there is no upper-level correlation between equipment start and stop, which is mainly used for equipment maintenance or emergency production situations;
(3) On-site mode: Switch to on-site mode through the on-site switch button, which is used for on-site equipment maintenance.

Figure 7. DCS control interface of Fuzhou plant
3、Project Effects and Economic Benefits
After Fuzhou TCC's installed nickel slag powder blending system, the comprehensive power consumption of its cement has dropped significantly, from 42kwh/t to 38kwh/t after production. Based on the local tiered electricity price policy, Fuzhou TCC can save more than 10 million yuan in electricity costs every year, with obvious energy-saving effects and significant economic benefits, which basically achieved the project's expected goals.
1、Project Introduction
Fuzhou TCC Cement Co., Ltd. was established on May 17, 2002, with an annual output of 1.5 million tons of cement. In order to achieve the goal of saving energy, reducing consumption and improving product competitiveness, Fuzhou TCC has proposed a transformation project of mixing nickel slag powder. Our company is the winning bidder for this EPC project. The project includes the scheme design of the nickel slag powder mixing system, equipment selection and supply, construction, installation and commissioning.
2、Technical Plan
2.1 Process Plan Formulation
The project is limited by the original factory space. When our company made the design and transformation plan, we successfully dealt with the compatibility problem between the original production system and the newly added system. The process plan and pictures of the scene are as follows:
Figure 1. Process chart of the Fuzhou TCC nickel slag powder blending system
Figure 2. Process plan of Fuzhou TCC nickel slag powder blending system
Figure 3. The photo of Fuzhou TCC nickel slag powder blending system
2.2 Core Equipment Solution
The process equipment of this project involves the storage, transportation, metering and mixing of nickel slag powder, and its core equipment is the metering and mixing of nickel slag powder.
(1)Nickel slag powder metering device
The project is equipped with our Coriolis powder metering device (one warehouse with three devices). The metering device uses the Coriolis principle to achieve a metering accuracy of ±0.5% and a control accuracy of ±1%. Equipment pictures of scene and metering data are as follows.
Figure 4. The photo of nickel slag powder metering device
Figure 5. Trend chart of nickel slag powder metering scale
|
Data |
Time |
Weight(t) |
Accumulation(t) |
Difference (t) |
Error |
|
|
2017.6.22 |
18:20 |
111.84 |
88.88 |
|
|
|
|
2017.6.22 |
19:20 |
103.92 |
96.86 |
0.05 |
0.66% |
|
|
2017.6.22 |
20:20 |
95.86 |
104.86 |
-0.06 |
-0.75% |
|
|
2017.6.22 |
21:20 |
87.84 |
112.83 |
-0.05 |
-0.65% |
|
|
2017.6.22 |
22:20 |
79.78 |
120.85 |
-0.04 |
-0.44% |
|
|
2017.6.22 |
23:20 |
71.70 |
128.83 |
-0.10 |
-1.19% |
|
|
Average error percentage in 5 hours: -0.48% |
|
|||||
Table 1. Data analysis of metering effect of nickel
slag powder metering device
(2)Mixer
The project is equipped with our combined continuous mixer, which is a vertical mixer (Figure 6). This selection effectively solves the space interference problem between the old production line and the newly added system on site, and makes the new system perfectly integrated into the old production line system. The operating power consumption of the blender is lower (the actual power is 4Kw), and the blending effect is excellent. The conditions and blending data are as follows.
Figure 6. photos of combined continuous mixer on site
2.3 Electric Control Scheme
In order to facilitate the control of the mixing of nickel slag powder, our project team specially developed a set of DCS centralized control system (as shown in Figure 7). The control scheme design has the following three control methods.
(1) Central control interlock mode: In this mode, the equipment starts and stops in sequence, and the equipment starts and stops are related to the upper and lower levels. This mode is mainly used in normal production;
(2) Central control uninterlocking mode: In this mode, the central control can realize single-point start and stop equipment, and there is no upper-level correlation between equipment start and stop, which is mainly used for equipment maintenance or emergency production situations;
(3) On-site mode: Switch to on-site mode through the on-site switch button, which is used for on-site equipment maintenance.

Figure 7. DCS control interface of Fuzhou plant
3、Project Effects and Economic Benefits
After Fuzhou TCC's installed nickel slag powder blending system, the comprehensive power consumption of its cement has dropped significantly, from 42kwh/t to 38kwh/t after production. Based on the local tiered electricity price policy, Fuzhou TCC can save more than 10 million yuan in electricity costs every year, with obvious energy-saving effects and significant economic benefits, which basically achieved the project's expected goals.
